123 iMMO

Bungalow · Nouvelle construction Los balcones

299.000€
Voir toutes les photos Partager PDF/Imprimer Retourner

Bungalow · Nouvelle construction Los balcones

Caractéristiques

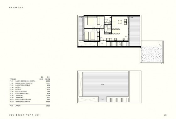
  • 65m2
  • 23m2
  • 2
  • 2
  •  
Chambres:2
Salles de bain:2
Construit:65m2
Parcelle:23m2
Piscine:Oui
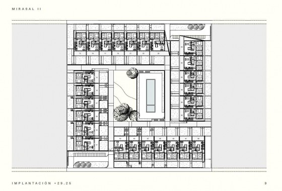
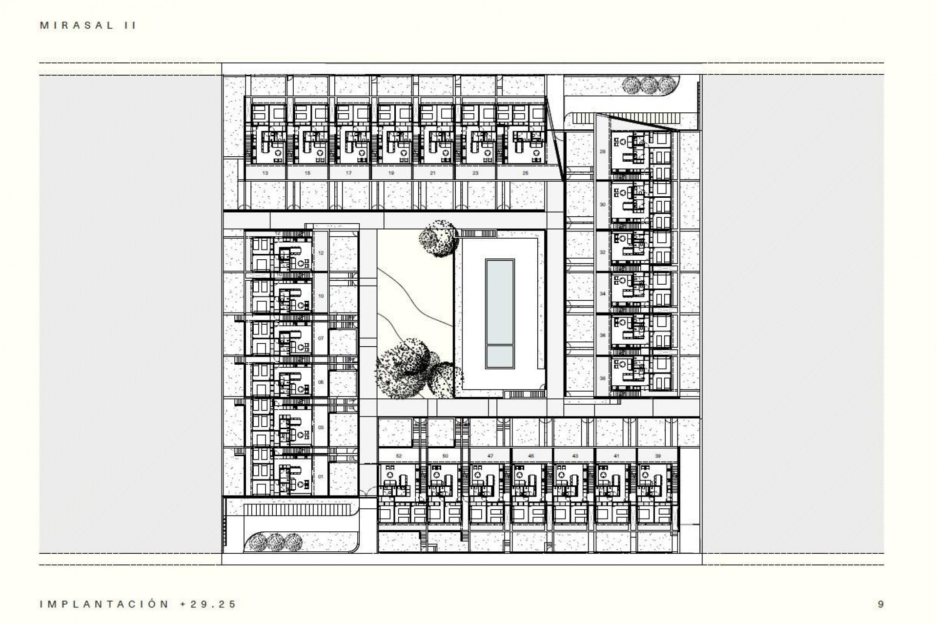
Location: Coastal, Urbanisation
Solarium: Yes
Under-Build / Basement
Terrace: 82 Msq.
Beach: 3500 Meters
Space
Storage / Trastero
Garden
Communal pool
Gated
Number of Parking Spaces: 1
Near Golf / Golf Resort Property
Near Schools
Air Conditioning: Pre-Installed
Near Commercial Center
Useable Build Space: 60 Msq.
Double Bedrooms: 2

Description

Emplacement

Demander plus d'infos

Responsable del tratamiento: 123 IMMO, SL, Finalidad del tratamiento: Gestión y control de los servicios ofrecidos a través de la página Web de Servicios inmobiliarios, Envío de información a traves de newsletter y otros, Legitimación: Por consentimiento, Destinatarios: No se cederan los datos, salvo para elaborar contabilidad, Derechos de las personas interesadas: Acceder, rectificar y suprimir los datos, solicitar la portabilidad de los mismos, oponerse altratamiento y solicitar la limitación de éste, Procedencia de los datos: El Propio interesado, Información Adicional: Puede consultarse la información adicional y detallada sobre protección de datos Aquí.

Finances

Les informations fournies sont sujettes à des erreurs et ne font partie d'aucun contrat. L'offre peut être modifiée ou retirée sans préavis. Les prix ne comprennent pas les frais d'achat.

Calculer les hypothèques

Échange de devises

  • Livres sterling: 258.988 GBP
  • Rouble russe: 258.988 RUB
  • Franc suisse: 273.675 CHF
  • Yuan chinois: 2.359.798 CNY
  • Dollar: 347.946 USD
  • Couronne suédoise: 3.226.061 SEK
  • La couronne norvégienne: 3.228.303 NOK
WhatsApp