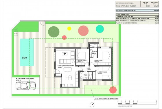
Villas neuves dans l'urbanisation La Montañosa, Hondón de las Nieves Une vie méditerranéenne paisible dans la campagne d'Alicante Découvrez une collection exclusive de villas neuves situées à La Montañosa, un quartier résidentiel calme près du charmant village de Hondón de las Nieves. Réputé pour son atmosphère espagnole traditionnelle, ses magnifiques paysages montagneux et son mode de vie décontracté, cet endroit situé à l'intérieur des terres offre un équilibre idéal entre tranquillité et commodité. Profitez d'un cadre rural en pleine nature tout en étant à seulement 30 km des plages de la Costa Blanca et des villes côtières animées. Villas de plain-pied personnalisables avec tout le confort moderne Ce projet résidentiel propose des villas personnalisables conçues sur un seul étage pour un confort maximal et une vie facile. Choisissez parmi différents styles architecturaux, notamment des designs ibicenco, modernes et méditerranéens, tous dotés de 3 chambres et 2 salles de bains, dont une en suite. Les surfaces construites varient entre 100 et 125 mètres carrés, avec des espaces de vie spacieux et ouverts, des cuisines équipées, des armoires encastrées et de grandes fenêtres qui inondent la maison de lumière naturelle. Chaque villa est construite sur des terrains privés à partir de 400 mètres carrés, vous offrant ainsi de l'espace, de l'intimité et la possibilité de profiter de la vie en plein air dans un environnement paisible. Le prix final dépend du modèle de villa, du système de construction et du terrain choisi. Ce prix de référence comprend un terrain d'une valeur de 82 500 euros, avec des ajustements si un autre terrain est choisi. Des espaces extérieurs conçus pour la détente Profitez du style de vie méditerranéen avec des jardins privés, une piscine de 6 x 3 mètres, un porche couvert et un parking privé à l'intérieur du terrain. Tous les terrains sont clôturés, offrant intimité et sécurité. Que vous souhaitiez vous détendre au bord de la piscine, profiter de la vue sur les montagnes ou recevoir des invités, ces villas vous offrent une expérience exceptionnelle en plein air. Construction de haute qualité et équipements modernes Livrées environ 12 mois après l'obtention du permis, chaque villa est construite selon des normes élevées et dispose d'équipements haut de gamme, notamment Porte d'entrée blindée et portail motorisé Volets roulants motorisés dans les chambres Cuisine entièrement équipée Salles de bains entièrement équipées avec meubles-lavabos, miroirs et parois de douche Pré-installation pour la climatisation centralisée Système d'eau chaude aérothermique Emplacement idéal à proximité de la nature et des principales attractions Aéroport d'Alicante : 35 km Plages de la Costa Blanca : 30 km Ville et port d'Alicante : 40 km Elche : 28 km Alenda Golf : 20 km Font del Llop Golf : 25 km Votre nouvelle maison méditerranéenne vous attend Profitez du calme, de l'intimité et d'un mode de vie moderne dans l'un des plus beaux quartiers résidentiels de l'arrière-pays d'Alicante. Contactez-nous dès aujourd'hui pour obtenir plus d'informations ou organiser une visite de ces superbes villas neuves à Hondón de las Nieves.
Les informations fournies sont sujettes à des erreurs et ne font partie d'aucun contrat. L'offre peut être modifiée ou retirée sans préavis. Les prix ne comprennent pas les frais d'achat.